Beliebtes attraktives Restaurant im Stadtkern von Hemmoor mit Kegelbahn, großen Saal mit ca. 300 Sitzplätzen,Bühne, Gäste Zimmer, Außenterrasse
Objektart
Adresse
Objektdaten
Informationen
Ausstattung
Details
Entdecken Sie dieses sehr beliebte Restaurant im Herzen von Hemmoor (Google bewertet 4,8/Apple Karten 4,9), das seit zig Jahren Gäste begeistert.
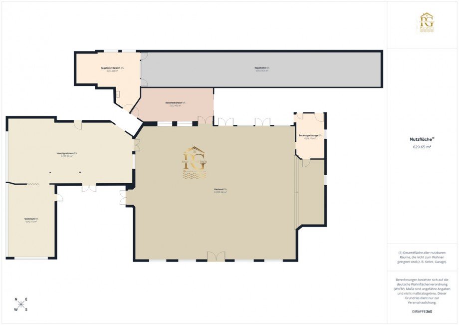
Dieses gepflegte Gastgewerbe Objekt bietet auf ca. 908 m² Nutzfläche eine gehobene Ausstattung und vielseitige Nutzungsmöglichkeiten. Das Herzstück ist der weitläufige Saal mit fast 300 Sitzplätzen, ideal für Feste und Veranstaltungen wie das Ortsschützenfest. Die abgetrennten Räume und der Clubraum mit Abluftanlage laden zu gemütlichen Abenden ein und überzeugen mit kulinarischer Vielfalt.
Für Köche ist die moderne Gastronomieküche ein echtes Paradies, ausgestattet mit hochwertigen Geräten wie Kühl- und Gefrierzellen. Neue Gästezimmer im Obergeschoss bieten zusätzliche Einnahmequellen, besonders beliebt bei Veranstaltungsteilnehmern.
Die Immobilie verfügt über eine große Kegelbahn, einen Lagerschuppen und 14 Außenstellplätze. Ein nahtloser Übergang in den Betrieb ist möglich, da das Inventar übernommen werden kann.
Dieses einzigartige und attraktive Objekt richtet sich an Investoren und Gastronomen, die den Charme und das Potenzial eines traditionellen Restaurants schätzen. Der Verkauf erfolgt aus Altersgründen und bietet die Chance, eine treue Stammkundschaft zu übernehmen. Verfügbar nach Absprache.
Vereinbaren Sie einen Besichtigungstermin mit uns.
Schauen Sie sich gerne vorab unsere Online Besichtigung per 360 Grad Rundgang an.
- Großer Saal (ca. 300 Sitzplätze)
- Restaurant (ca. 44 Plätze)
- Clubraum (ca. 32 Plätze)
- Bar/Tresen (ca. 20 Plätze)
- Saalbereich (mind. 234 Plätze)
- Saal im Nebengebäude (ca. 42 Plätze)
- Außen-Terrasse (ca. 30-40 Sitzplätze)
- Kegelbahn (Doppelbahn, ca. 20 Plätze)
- Voll ausgestattete, moderne Küche (u. a. Gefrierzelle, Kühlzellen, Kombidampfer)
- Kunden-WC
- Gästezimmer im Obergeschoss
- Unterkellert
- Keller-/Nebenflächen
- Gastherme (Restaurant/Gästezimmer)
- Ölheizung mit Gebläse (Saal)
- Metall-Öltank (2.500 Liter)
- Ca. 14 Kfz-Stellplätze
- Grundstück ca. 2.637 m²
Das Restaurant befindet sich in Hemmoor innerhalb der Samtgemeinde Hemmoor und überzeugt durch eine verkehrsgünstige sowie gut erreichbare Lage im Elbe-Weser-Dreieck. Die Umgebung ist geprägt von einer gewachsenen Infrastruktur mit kurzen Wegen zu Einrichtungen des täglichen Bedarfs und einer soliden Anbindung an das regionale Straßennetz.
Die Anbindung an den öffentlichen Personennahverkehr ist durch nahegelegene Bushaltestellen gewährleistet. Der Bahnhof Hemmoor mit der Metronom-Verbindung auf der Strecke Hamburg-Cuxhaven liegt in etwa 1 km Entfernung und ermöglicht eine komfortable Erreichbarkeit auch für Gäste und Mitarbeitende ohne PKW.
Für die Anreise mit dem Auto bietet Hemmoor durch die direkt durch den Ort verlaufenden Bundesstraßen B 73 und B 495 eine schnelle Verbindung in die umliegenden Städte und Gemeinden. Die Autobahn A 26 (Richtung Stade/Hamburg) ist in ca. 30 km, die A 27 (Richtung Hannover/Cuxhaven) in rund 40 km erreichbar.
Auch die Nordseebäder Otterndorf und Cuxhaven sind von hier aus gut und zügig erreichbar - ein Pluspunkt für frequenzstarke Gastronomiekonzepte mit touristischer Zielgruppe.
Somit besitzt dieses Restaurant ein großes Einzugsgebiet.
Lassen Sie sich bei einer persönlichen Besichtigung von diesem einmaligen Angebot überzeugen.
Wir freuen uns auf Ihren Anruf unter Telefon 0151/50484438 oder Büro:04751/4043039
oder Nachricht unter info@immobilien-gaentzsch.de
Bitte haben Sie Verständnis dafür , dass wir nur Anfragen bearbeiten können sofern uns Ihre kompletten Kontaktdaten vorliegen.
Alle Angaben sind ohne Gewähr und basieren ausschließlich auf Informationen, die uns von unserem Auftraggeber zur Verfügung gestellt wurden.
Wir übernehmen keine Gewähr für die Vollständigkeit, Richtigkeit und Aktualität.
Wir übernehmen keine Haftung für die Richtigkeit der im Exposé genannten Angaben.
Insbesondere die Angaben zur Wohnfläche, zur Nutzfläche und zur Aufteilung der Wohn-/ Nutzfläche.
Irrtum, Zwischenverkauf und Änderungen vorbehalten.
Ralf Gaentzsch / Bankkaufmann ist Partner vom großen Baufinanzierer Deutschland Dr. Klein.
Mit über 600 Partnerbanken bieten Ihnen zu diesem Traumhaus auch die passende Finanzierung mit an.
Fragen Sie uns einfach unverbindlich !"
Die Maklergebühr von je 2,99 % inkl. Mwst ist mit Abschluss des Notar Vertrages fällig binnen 8 Tagen nach Rechnungsstellung.
Mail an : info@immobilien-gaentzsch.de
www.immobilien-gaentzsch.de
Ansprechpartner
Mobil: 004915150484438
info@anfragen-immobilien-gaentzsch.de
Ich bin damit einverstanden, dass mir Karten von Google angezeigt werden. Es gelten die Datenschutzbedingungen von Google (https://policies.google.com/privacy).
Ich bin einverstanden